Používame cookies

Súbory cookie a ďalšie technológie sledovania používame na zlepšenie vášho zážitku z prehliadania našich webových stránok, na to, aby sme vám zobrazovali prispôsobený obsah a cielené reklamy, na analýzu návštevnosti našich webových stránok a na pochopenie toho, odkiaľ naši návštevníci prichádzajú. Viac info

 

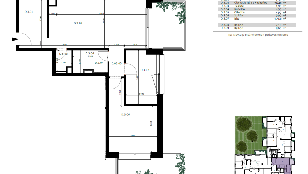
D.3/ 3-izbový byt

Interné ID: D.3
Ulica: Teslova
Mestská časť: Štrkovec
Obec: Bratislava-Ružinov
Okres: Bratislava II
Kraj: Bratislavský kraj
Druh: Byty
Typ: Predaj
Typ bytu: 3-izbový byt
Rezervované
Exkluzívna ponuka

Popis nehnuteľnosti

D.3  3-izbový byt

Parametre nehnuteľnosti D.3

  • Úžitková plocha: 67,20 m²
  • Balkón: 7,10 m²
  • Balkón: 8,60 m²
  • K bytu je možnosť dokúpiť parkovacie miesto v podzemnej garáži a pivničnú kobku

Byt & štandard

Byt bude odovzdaný vo vysokom štandarde, ktorý zahŕňa:

  • kvalitné podlahy, obklady a dlažby
  • modernú sanitu
  • klimatizáciu

Zároveň ponúka možnosť výberu finálnych materiálov a farebných kombinácií, vďaka čomu si môžete vytvoriť bývanie presne podľa vlastných predstáv.

Byt je orientovaný tak, aby poskytoval dostatok denného svetla a príjemnú atmosféru počas celého dňa.

 


Kontakt:

JUDr. Miroslav Tomčiak
Dominant Real
📞 +421 905 226 082
✉️ tomciak@dominantreal.sk

Vlastnosti

Status:
rezervované
Vlastníctvo:
osobné
Úžitková plocha:
67.2 m2
Stav:
Vo výstavbe
Počet izieb:
3
Energetický certifikát:
A
Balkón:
áno
Rok výstavby:
2026
Pozícia:
vyššie poschodie
Poschodie:
2
Celková plocha:
67.2 m2
Plocha balkóna:
15.69 m2
Počet balkónov:
2
Status:
rezervované
Vlastníctvo:
osobné
Úžitková plocha:
67.2 m2
Stav:
Vo výstavbe
Počet izieb:
3
Energetický certifikát:
A
Balkón:
áno
Rok výstavby:
2026
Pozícia:
vyššie poschodie
Poschodie:
2
Celková plocha:
67.2 m2
Plocha balkóna:
15.69 m2
Počet balkónov:
2

Informatívna úverová kalkulačka

Pozrieť na mape

Radi Vám poradíme

Podobné nehnuteľnosti