 
            | Ulica: | Golfová | 
|---|---|
| Obec: | Veľká Lomnica | 
| Okres: | Kežmarok | 
| Kraj: | Prešovský kraj | 
| Druh: | Domy | 
| Typ: | Predaj | 
| Typ domu: | Rodinný dom | 
| Iné: | 
Rodinný dom s výhľadom na Tatry – Veľká Lomnica
Ak hľadáte pokojné miesto na bývanie alebo rekreáciu v srdci podtatranskej prírody, tento 4-izbový rodinný dom vo Veľkej Lomnici vás nadchne.
Dom bol skolaudovaný v roku 2009, má výbornú dispozíciu a nachádza sa na priestrannom pozemku.
Je situovaný v obytnorekreačnej zóne s krásnym výhľadom na Tatry, v lokalite s kompletnou technickou infraštruktúrou – obecný vodovod, kanalizácia, elektrina, plyn. Prístup je po asfaltovej ceste.
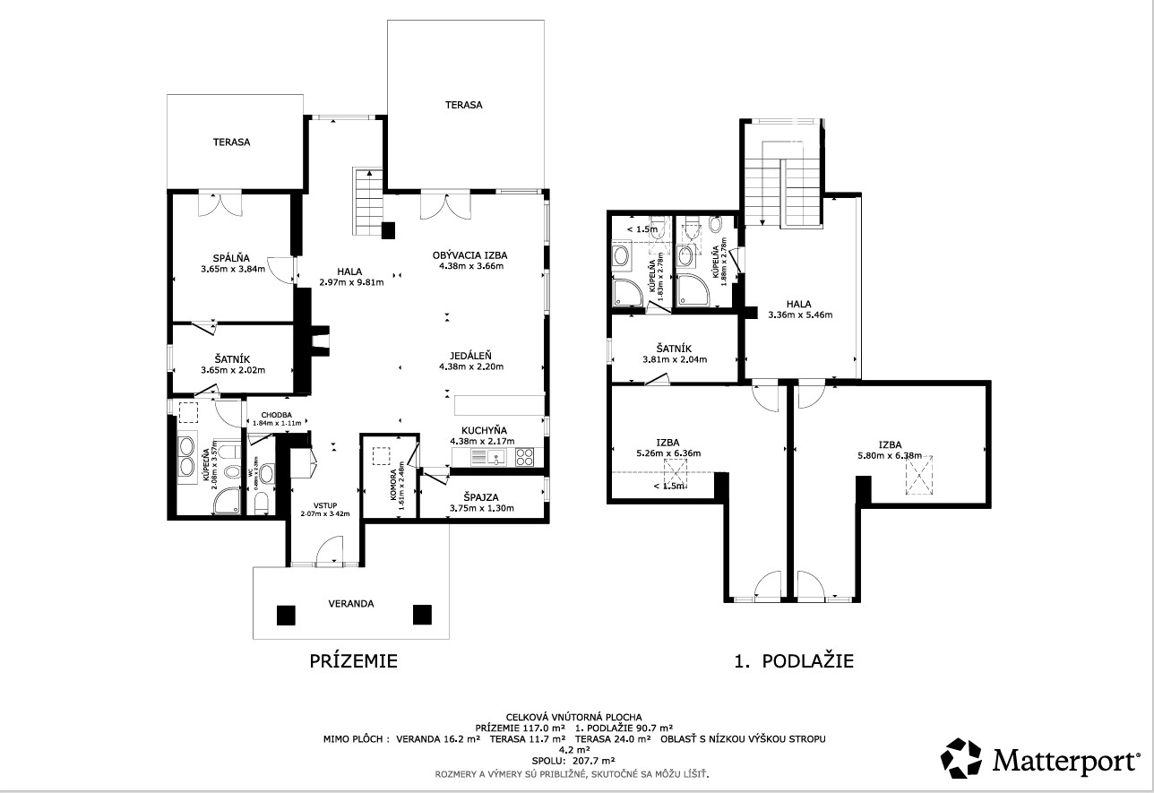
Pozemok: 996 m²
Úžitková plocha domu: prízemie 206 m² + poschodie 94 m²
Garáž – pohodlné parkovanie aj úložný priestor
Dispozícia:
Na prízemí sa nachádza vstupná predsieň, kuchyňa prepojená s obývačkou, spálňa, kúpeľňa s WC a špajza.
Na poschodí sú dve priestranné izby, šatník a ďalšia kúpeľňa.
Dom je postavený z tehál Porotherm, zateplený, s fasádou v kombinácii omietky a prírodného kameňa. Má sedlovú strechu Bramac, plastové okná, drevo-plávajúce podlahy, podlahové kúrenie, krb s teplovzdušnou vložkou a tepelné čerpadlo ako zdroj vykurovania.
V dome je moderná kuchyňa so vstavanými spotrebičmi, dve kúpeľne so sprchovacím kútom aj vaňou, toaleta na každom poschodí a technická miestnosť.
Dom je svetlý, vzdušný a vďaka veľkým oknám ponúka nádherný výhľad na tatranské štíty. Rozľahlý záhradný pozemok je ako stvorený na oddych, posedenie s priateľmi či detské hry.
Exteriér ponúka rovinatý, udržiavaný pozemok s dostatkom priestoru na relax či bazén. Milovníkov aktívneho oddychu poteší blízkosť golfového ihriska, cyklotrás a turistických chodníkov.
V cene nehnuteľnosti je zahrnuté kompletné zariadenie domu a časovo neobmedzené rodinné členstvo v prestížnom golfovom klube Black Stork Golf Resort - miesto, kde bývanie splýva s oddychom a štýlom.
V prípade záujmu o bližšie informcie a obhliadku:
JUDr. Mirolsav Tomčiak, +421 905 226 082, tomciak@domianantreal.sk